Project Final Documents

Proposed Roadway Views

Riverwalk Section A

Riverwalk Section A

Riverwalk Section B

Riverwalk Section B

Typical Section at Platt and Broein St. Bridges

Typical Section at Platt and Broein St. Bridges

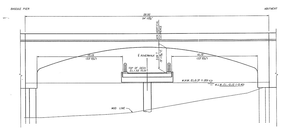
Typical Section Thru Average Span

Typical Section Thru Average Span

Segment 2 – Section A-A

Segment 2 – Section A-A

Segment 2 – Section B-B Platt Street Bridge – Looking North

Segment 2 – Section B-B Platt Street Bridge – Looking North

Segment 2 – Section C-C Brorein Bridge – Looking North

Segment 2 – Section C-C Brorein Bridge – Looking North

Segment 2 – Typical Section Thru Walkway

Segment 2 – Typical Section Thru Walkway

Segment 3 – Kennedy Blvd. Bridge – Looking North

Segment 3 – Kennedy Blvd. Bridge – Looking North

Segment 3 – Section A-A

Segment 2 – Section A-A

Segment 3 – Typical Section Thru Walkway

Segment 3 – Typical Section Thru Walkway

Documents

PD&E Study Technical Report

Contact Information
For more information about this project, please contact:

Environmental Management Office
Florida Department of Transportation, District Seven
11201 N. McKinley Drive
M.S. 7-500
Tampa, FL 33612-6456

Phone: (813) 975-6000
Toll Free: (800) 226-7220

Comuniquese Con Nosotros
Si usted tiene preguntas o comentarios, o si simplemente desea más información sobre este proyecto, favor ponerse en contacto con el señor Manuel Flores, al teléfono (813) 975-6279 o al correo electrónico manuel.flores@dot.state.fl.us.